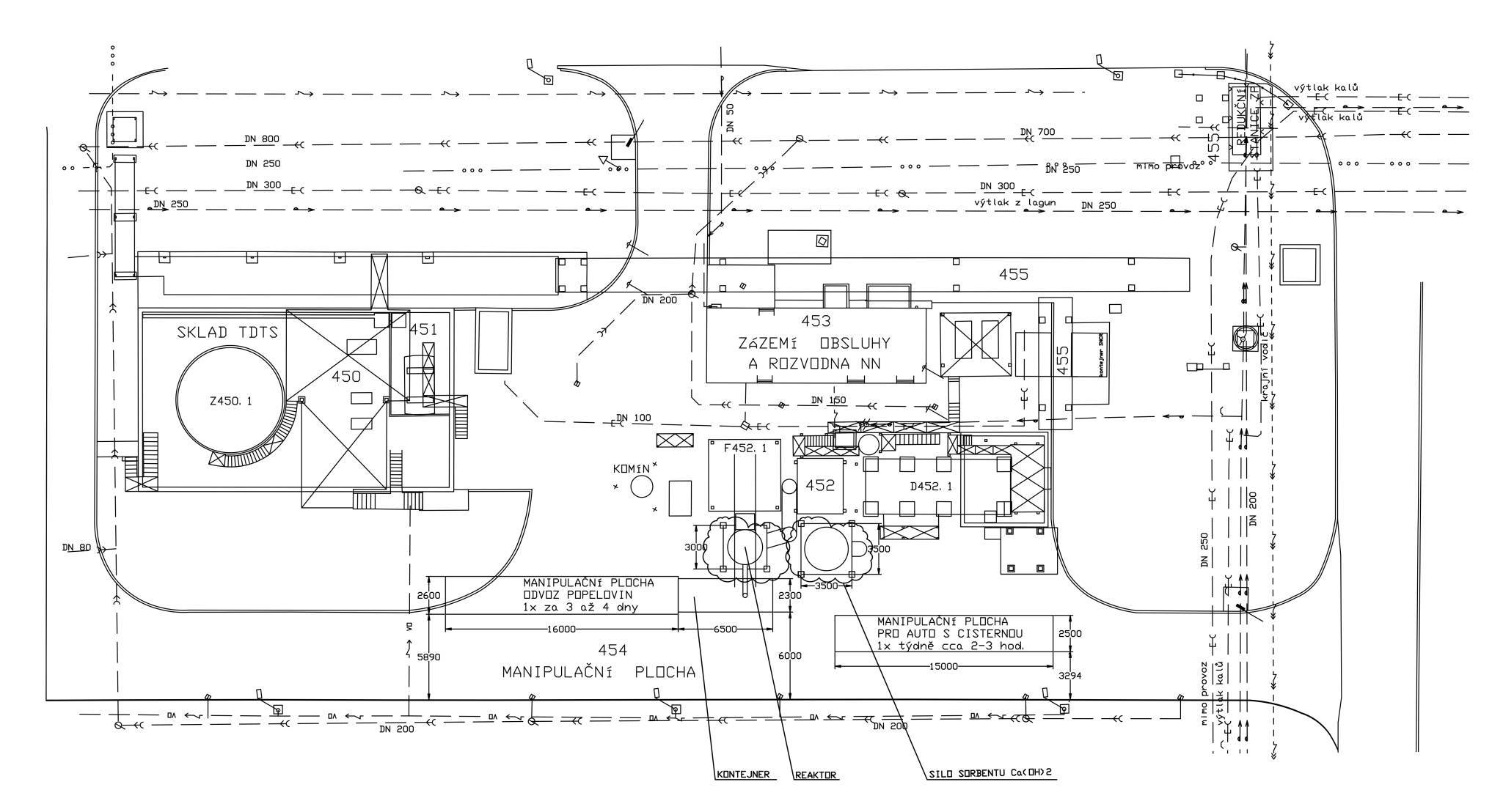
Studie se zabývala posouzením metod odsíření kotle D1 společnosti DEZA a.s., který byl primárně určen pro spalování dehtové topné směsi. V první části studie bylo provedeno posouzení možnosti využití stávající polosuché metody odsíření pomocí vápenného mléka. Na základě odborného zhodnocení a předpokládané provozní náročnosti stávající metody odsíření byla jako srovnávací technologie navržena suchá kondiciovaná metoda odsíření pomocí Ca(OH)2, která byla posouzena společně s odsířením pomocí NaHCO3. Pro navržené technologie odsíření byly provedeny materiálové a energetické bilanční výpočty, technologické schéma a základní stavebně dispoziční řešení. V návaznosti na navržené varianty byly odhadnuté investiční a provozní náklady a také časový harmonogram v případě realizace projektu.
